re-GENERATOR

….

Centar urbane kulture re-GENERATOR nastao je na prostoru nekadašnje tvornice Regeneracija kao dio šireg procesa transformacije nekadašnje industrijske zone u novi centar grada.

..

Center of urban culture re-GENERATOR is located on the site of the former Regeneracija factory in Zabok, established as part of a broader process of transforming the industrial zone into a new city center.

….

….

Ambiciozan program koji obuhvaća nezavisne udruge na polju kulture, glazbe, kreativnih industrija i civilnog društva nadilazio je mogućnosti prilagodbe zatečenih industrijskih prostora pa su oni djelomično prilagođeni a djelomično zamijenjeni novima.

..

The ambitious program, including various independent organizations in culture, music, creative industries, and civil society, exceeded the capacity of the existing spaces, which were partly refurbished and partly replaced with new structures.

….

 
MVA_reGZ_02_vanjski prostor_72.jpg

….

Zbijen unutar guste okolne izgradnje, centar je organiziran kao sklop triju međusobno povezanih volumena – jednog rekonstruiranog i dva nova, tvoreći novi landmark specifičnog identiteta – istovremeno starog i novog, temeljenog na industrijskom nasljeđu Zaboka.

..

Nestled within the dense surrounding development, the center is organized into three interconnected volumes – one reconstructed and two newly built, forming a landmark with distinctive identity, blurring the boundaries between old and new.

….

….

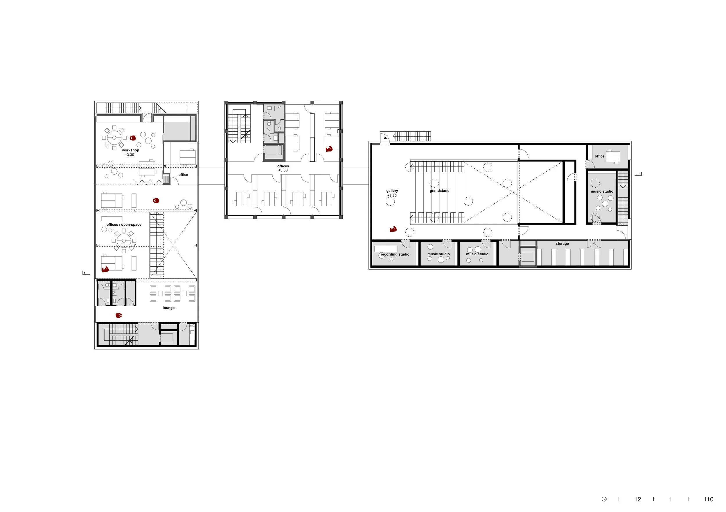
Kao odgovor na složenu strukturu korisnika i programa, novi re-GENERATOR je koncipiran kao složeni sustav s tri međusobno povezane cjeline, kodirane nazivima Regenerator, Silos i Inkubator.

..

Responding to the complex structure of users and programs, the new re-GENERATOR is conceived as a cohesive system of three interconnected volumes, code-named Regenerator, Silos, and Inkubator.

….

….

Rekonstruirana skladišna zgrada - Regenerator sadrži koncertni prostor i sviraonice, u Silosu se nalaze uredi i radni prostori a u Inkubatoru malo art-kino, izložbeni prostor, prostori za rad udruga s učionicom te mini-hostel. Grupiranje programskih elemenata u tri nezavisna volumena omogućuje različite načine korištenja: dijelovi mogu funkcionirati autonomno ili se objediniti u jedan kontinuirani, fluidni prostor na razini prizemlja.

..

The reconstructed warehouse – Regenerator – houses a concert hall, a recording studio and rehearsal rooms; Silos contains a café, offices, and workspaces; and Inkubator includes a small art cinema, exhibition space, workshop areas with a multi-purpose classroom, and a mini-hostel. Grouping the programmatic elements into three independent volumes allows for multiple modes of use: the parts can operate autonomously or be unified into one continuous, fluid space at ground level.

….

….

Programski i konceptualno različiti, tri volumena definiraju niz prostora različitih karaktera – od tamne i introvertirane koncertne dvorane do radnih prostora s velikim ostakljenim otvorima u Silosu i prozračnog vertikalnog prostora Inkubatora. Istovremeno djelujući kao jedna zgrada ali i malo susjedstvo, kompleks se otvara prema središnjem trgu, djelomično natkrivenom pergolom i uokvirenom vanjskom pozornicom, stvarajući novi javni prostor i mjesto susreta u gradu.

..

The programmatic and conceptual differentiation of the three volumes defines a sequence of spaces, each with its own character– from the dark and introverted concert hall to the floor-to-ceiling glazed workspaces and the translucently lit vertical void of the Inkubator. Acting both as a single building and as a small neighborhood, the complex opens toward a central square, partially covered by a pergola and framed by an outdoor stage, creating a new public space and meeting point for the city.

….

Prizemlje / Ground floor plan

….

Materijalizacija kompleksa odražava raznolikost njegovih programa kroz različite, ali dosljedno ‘industrijske’, jednostavne materijale. Konstrukcija svakog volumena izravni je izraz njegovih programskih zahtjeva: postojeća čelična konstrukcija Regeneratora ojačana je i dopunjena zidovima s akustički optimiziranim svojstvima, prilagođavajući prostor koncertnoj dvorani i prostorijama za probe; u Silosu nova betonska konstrukcija strukturira urede i radne prostore kroz čvrst koncept okvira i ispune; dok lagana čelična konstrukcija Inkubatora oblikuje fleksibilne, prozračne prostore za radionice, izložbe i mini-hostel.

..

The materialization of the complex reflects the diversity of its programs through varied, yet consistently ‘industrial’, simple materials. The structure of each volume is a direct expression of its programmatic requirements: the existing steel structure of Regenerator is reinforced and complemented by acoustically optimized walls, adapting the space for the concert hall and rehearsal rooms; in the Silos, the new concrete structure organizes the offices and workspaces through a rigid concept of frame and infill; while the lightweight steel structure of the Inkubator allows flexible, airy spaces for workshops, exhibitions, and the mini-hostel.

….

….

Kao praktičan doprinos pitanjima održivosti, metalni lim s krova starog objekta ponovno se koristi na dva načina – izravno kao unutarnja obloga te u negativu kao oplata za teksturirane betonske zidove koncertne dvorane. Ovim pristupom materijal i konstrukcija nisu samo izravan izraz programa, već oblikuju prostornu kvalitetu i atmosferu svakog volumena.

..

As a pragmatic contribution to the issues of sustainibility, the roof metal sheet from the old building is reused in two different ways – directly as interior cladding, and in negative form as formwork for the textured concrete walls of the concert hall. Through this approach, material and structure are not only a direct expression of program, they shape the spatial quality and atmosphere of each volume.

….

1. kat / 1st floor plan

Tlocrt 2. kata / 2nd floor plan


….

DRUŠTVENO-KULTURNI CENTAR
re-GENERATOR

LOKACIJA: Zabok

GODINA: 2018. - 2025.

INVESTITOR: Grad Zabok

POVRŠINA: Površina lokacije: 1.246 m² / Ukupna brutto površina: 2.700 m²

PROJEKTNI TIM: Marin Mikelić, Tomislav Vreš, Sara Pavlov, Alma Sekondo

SURADNICI: Marija Barović, Medina Ćevapović, Barbara Horvatić, Mia Kos, Anita Kovačić, Natalija Šarlija, Domagoj Šobatović, Viktor Vdović

STATUS: Izvedeno

..

re-GENERATOR

LOCATION: Zabok, Croatia

YEAR: 2018 - 2025

CLIENT: City of Zabok

AREA: Site area 1.246 m² / Total gross floor: 2.700 m²

DESIGN TEAM: Marin Mikelić, Tomislav Vreš, Sara Pavlov, Alma Sekondo

COLLABORATORS: Marija Barović, Medina Ćevapović, Barbara Horvatić, Mia Kos, Anita Kovačić, Natalija Šarlija, Domagoj Šobatović, Viktor Vdović

STATUS: Built

….